Refroidissement moteur - TU (HFX - KFV - NFU)



Refroidissement moteur - TU (HFX - KFV - NFU) - avec refrigeration



Refroidissement moteur - Diesel (tous types)



Injection allumageCouples de serrage (en daN.m)
Culasse :
preserrage
............................................................................2
serrage..................................................................................4
serrage angulaire
....................................................... ...
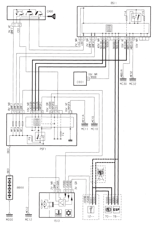
Ceintures de sécurité
Ceintures de sécurité avant
Les ceintures de sécurité avant sont équipées d'un système de prétension pyrotechnique
et de limiteur d'effort.
Ce système améliore la sécurité aux places avant, lors des chocs frontau ...
Graissage entretien
JANTES ET PNEUS
Pression normale de fonctionnement..........................2,1 bar
Pression de la roue de secours
..................................2,3 bar
Nota : Au cas ou la verification de la pression ne peut etre
effectuee sur des pneumatiques froids, il faut majorer les
...