


Injection allumageRefrigeration regulee
Refrigeration regulee - TU1JP (HFX)
Refrigeration regulee - TU3JP (KFV)
Refrigeration regulee - TU3JP (KFV) - Boite de vitesses automatique AL4
Refrigeration regulee - TU5JP4 (NFU)
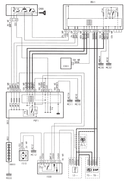
Refrigeration regulee - TU5JP4 (NFU) - avec controle de stabilite
...
Suspension AR
Amortisseur
Depose
Mettre le vehicule sur un pont elevateur.
Nota : L'operation est facilite avec l'utilisation
d'un pont 4 colonnes a levage auxiliaire.
Vehicule au sol, mettre en place l'outil
[1] sur les ressorts de suspension
(Fig.Tr.Ar.1).
Serr ...
Multiplexage
Presentation
Le multiplexage consiste a faire circuler plusieurs informations
numeriques entre divers equipements electriques, sur un seul
canal de transmission materialise par 2 fils :
DATA et DATA B (barre) pour les reseaux VAN CAR et VAN
CONFORT,
CANAL HIGH et CANAL ...